Overview
- Updated On:
- February 14, 2026
- 4 Bedrooms
- 1 Bathroom
- RM6 4AW
- EPC
Description
ENTRANCE HALL Double glazed door to own front door;
HALLWAY Double radiator, telephone point, power point, wood laminate flooring, understairs storage cupboard, housing gas and electric meter, doors to;
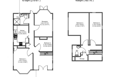
RECEPTION ONE 14′ 6" x 12′ 24" (4.42m x 4.27m) Double glazed window to front bay, wood laminate flooring, single radiator, feature fire place, power points, French doors to;
RECEPTION TWO 13′ 8" x 10′ 9" (4.17m x 3.28m) Single radiator, wood laminate flooring, power points, feature fire place, TV point, telephone point, leading to;
OPEN PLAN KITCHEN LOUNG 19′ 6" x 6′ 69" (5.94m x 3.58m) L-Shape kitchen/Lounge8’93 x 16’88.
Double glazed window and door to rear, a range of wall and base units, with roll edge work surfaces, tiled splash backs, tiled floor, gas hob, electric oven with overhead extractor fan, power points, plumber for washing machine and dishwasher.
FIRST FLOOR LANDING Stairs to first floor landing, doors to, stairs to 3rd floor.
BEDROOM 1 14′ 6" x 11′ 3" (4.42m x 3.43m) Double glazed window to front bay, wood laminate flooring, power points.
BEDROOM 2 11′ 5" x 11′ 0" (3.48m x 3.35m) Double glazed window to rear, fitted wardrobes, single radiator, power points.
BEDROOM 3 8′ 58" x 6′ 48" (3.91m x 3.05m) Double glazed window to front, fitted wardrobes, power points, single radiator.
BATHROOM Double glazed frosted window to rear, three piece suite comprising of, low flush W/C, wash hand basin in vanity unit with mixer taps, p shape planned bath with mixer taps and shower attachment, wall mounted electric shower. heated towel rail.
BEDROOM 4 Double glazed window to rear, Velux windows to front, power points, double radiator, power points, telephone points, door to:
EN SUITE 5′ 4" x 4′ 3" (1.63m x 1.3m) Double glazed window to rear, 3 piece suite comprising of low flush W/C, wash hand basin, shower cubical with mains shower, tiled splash backs.











